Квартира
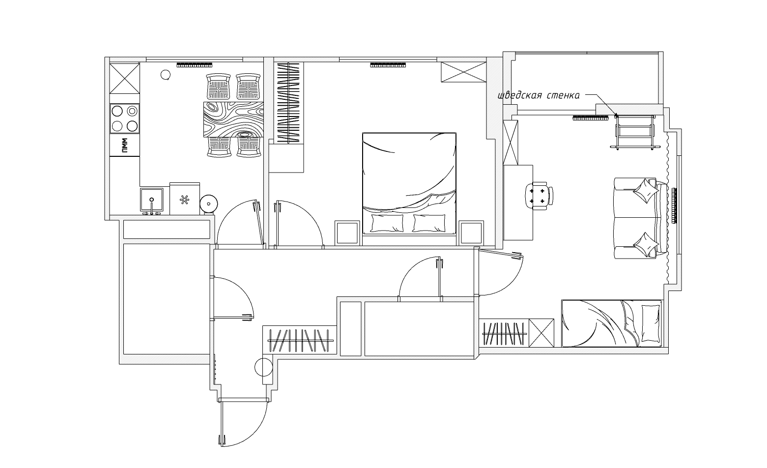
Расстановка мебели в двухкомнатной квартире с учётом образа жизни заказчиков.
Семья из 3 человек, ребёнок - школьник.
Расстановка мебели в двухкомнатной квартире с учётом образа жизни заказчиков.
Семья из 3 человек, ребёнок - школьник.